イルマニューロフト
印刷用画面 このページのURLをコピー※月々のお支払い例は金融機関や商品によって借入金額の条件は異なります。詳しくは店舗までお問い合わせください。
| 所在地 | 入間市久保稲荷3丁目 MAP |
|---|---|
| 交通 | |
| 学校区 | 入間市立扇小学校 560m 徒歩約7分
入間市立向原中学校 160m 徒歩約2分 |
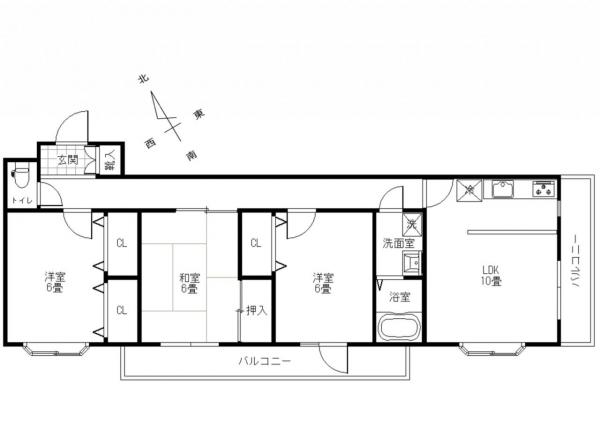
| 間取り | 3LDK |
【イオンスタイル入間店まで徒歩2分】
【67.5㎡ ゆとりの3LDKマンション】
【ペット飼育可能※細則あり】
全室南側を向いた角部屋3LDKマンション
販売開始致しました。 現況空室なので、いつでも内見頂けます。
物件概要
専有面積 |
67.53m2(20.42坪) |
バルコニー |
9.31m2(2.81坪) |
建物構造 |
RC造 |
|---|---|---|---|---|---|
権利形態 |
所有権 |
階数/階建 |
2階/地上4階 地下1階建て |
築年月 |
1995年7月 |
向き |
南西 |
総戸数 |
12戸 |
駐車場 |
空無 |
管理費 |
15,000円/月 |
修繕積立金 |
1,500円/月 |
管理形態 |
自主管理 |
管理会社 |
- |
現況 |
完成済 空室 |
引渡 |
即時 |
用途地域 |
第1種住居地域 |
地目 |
宅地 |
都市計画 |
市街化 |
取引態様 |
専任媒介 |
情報更新日 |
2025年11月10日 |
次回更新予定日 |
2025年12月17日 |
リフォーム |
- |
||||
設備 |
公営水道 / 汚水:公共下水 / ユニットバス / ユニットバストイレ / IHコンロ 三口 / 東京電力 閑静な住宅地 / 緑豊かな住宅地 / 角住戸 / 南向き / 全室南向き / 2面採光 / 陽当り良好 / 通風良好 / 出窓 / 全居室6畳以上 / 和室 / エアコン / 全居室収納 / クローゼット / シューズインクローク / シューズボックス / システムキッチン / IHクッキングヒーター / 浴室乾燥機 / シャワー付洗面化粧台 / ワイドバルコニー / 2面以上バルコニー / 平面駐車場 / スーパー 徒歩10分以内 / 小学校 徒歩10分以内 / 小学校まで1km以内 / 周辺交通量少なめ / 整備された歩道 / 眺望良好 / 即入居可 / ペット可 |
||||
制限事項 |
景観法 航空法 |
||||
備考 |
☆今すぐご案内可能です。気になった方はフリーダイヤル0120-28-7890まで即ご連絡を!! 埼玉地域専門30年以上の実績ある当社にお任せください。 ※お気軽にお問い合わせください。 |
||||
物件周辺環境
武蔵藤沢駅
2522m(徒歩32分)
武蔵藤沢駅
irumam
616m(徒歩8分)
irumam
三井アウトレットパーク 入間
2643m(徒歩34分)
三井アウトレットパーク 入間
イオンスタイル 入間
567m(徒歩8分)
イオンスタイル 入間
ヨークマート 入間店
430m(徒歩6分)
ヨークマート 入間店
ファミリーマート 入間藤沢店
540m(徒歩7分)
ファミリーマート 入間藤沢店
ファミリーマート 入間グリーンヒル店
567m(徒歩8分)
ファミリーマート 入間グリーンヒル店
サンドラッグ 下藤沢店
529m(徒歩7分)
サンドラッグ 下藤沢店
ドラッグストアセキ 上藤沢店
639m(徒歩8分)
ドラッグストアセキ 上藤沢店
入間市立 扇小学校
564m(徒歩8分)
入間市立 扇小学校
入間市立向原中学校
120m(徒歩2分)
入間市立向原中学校
コピオ入間下藤沢
1494m(徒歩19分)
コピオ入間下藤沢
スーパーアルプス入間下藤沢店
1447m(徒歩19分)
スーパーアルプス入間下藤沢店
若杉幼稚園
471m(徒歩6分)
若杉幼稚園
いるまクリニック
1121m(徒歩15分)
いるまクリニック
入間下藤沢郵便局
1936m(徒歩25分)
入間下藤沢郵便局
向原第一公園
189m(徒歩3分)
向原第一公園

・地積、建物床面積、仕様に変更が生じる場合があります。
・図面と現況が異なる場合には現況を優先します。
・物件情報は最新のものをご提供させて頂きますが、万一売約済の場合はご容赦ください。
・掲載物件の取引態様が「仲介」となっているものは、仲介手数料減額物件を除き、ご成約の際に規定の手数料及びそれに係わる消費税を別途申し受けます。
・建築条件付土地は土地売買契約締結後、一定期間内に当社指定の不動産会社もしくは建築業者と建築請負契約を結ぶことが前提となります。期間中に建築請負契約が成立しなかった場合、土地売買契約は白紙となり、支払った金額は全額返金されます。


















