所沢市緑町4丁目11期 新築分譲住宅全3棟 2号棟
印刷用画面※月々のお支払い例は金融機関や商品によって借入金額の条件は異なります。詳しくは店舗までお問い合わせください。
| 所在地 | 所沢市緑町4丁目 MAP |
|---|---|
| 交通 | |
| 学校区 | 北小学校 477m
向陽中学校 967m |
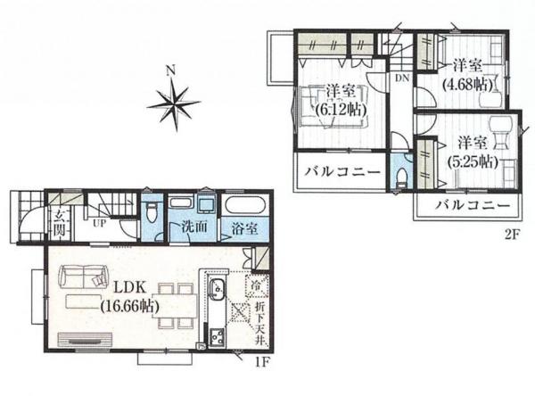
| 間取り | 4LDK |
新所沢駅徒歩5分!充実した住環境!
◆開放感と採光にこだわった17.7畳のLDK
◆たっぷりの収納力を備えたウォークインクロゼット
◆ご家族を近くに感じられる対面キッチン
・南側道路に面す立地です。
・南西向きです。
・全居室フローリング、リビング階段、床暖房です。
・ウォークインクローゼット付でスッキリ暮らせます。
・カウンターキッチンで使いやすいです。
・パントリー(食器・食品の収納庫)、食器洗乾燥機付で便利です。
・浴室に窓、浴室暖房付でバスタイムを快適に過ごせます。
・2面以上バルコニー付です。
・駐車2台可で安心快適なカーライフ。
・TVモニタ付インターホンで安心です。
・浴室乾燥機付です。
☆今すぐご案内可能です。気になった方はフリーダイヤル0120-28-7890まで即ご連絡を!!
所沢地域専門30年以上の実績ある当社にお任せください。
※お気軽にお問い合わせください。
物件概要
土地面積 |
86.06m2(26.03坪) |
建物面積 |
105.47m2(31.9坪) |
建物構造 |
木造 地上3階建て |
|---|---|---|---|---|---|
土地権利 |
所有権 |
築年月 |
2025年9月 |
建物現況 |
- |
用途地域 |
第2種住居地域 |
建ぺい率 |
60% |
容積率 |
200% |
現況 |
地目 |
宅地 |
都市計画 |
市街化 |
|
建築確認番号 |
第25UDI1W建00839号 |
引渡時期 |
相談 |
駐車場 |
有 カースペース |
情報更新日 |
2025年11月15日 |
次回更新予定日 |
2025年11月24日 |
私道面積 |
|
セットバック |
接道状況 |
南西側 7.9m 一方 公道 位置指定:無 |
取引態様 |
媒介 |
|
設備 |
都市ガス / 公営水道 / 汚水:公共下水 / ユニットバス / ユニットバストイレ / 東京電力 南側道路面す / 3階建以上 / 南西向き / LDK18畳以上 / 全居室フローリング / リビング階段 / 24時間換気システム / 床暖房 / ウォークインクローゼット / システムキッチン / カウンターキッチン / パントリー(食器・食品の収納庫) / 食器洗乾燥機 / 浄水器 / 浴室乾燥機 / 浴室に窓 / 浴室暖房 / トイレ2ヶ所 / 温水洗浄便座 / 2面以上バルコニー / 複層ガラス / 駐車2台可 / TVモニタ付インターホン / スーパー 徒歩10分以内 / 小学校 徒歩10分以内 / 小学校まで1km以内 / 整備された歩道 / 都市ガス |
||||
制限事項 |
|||||
備考 |
【所沢地域専門のイエステーション】 ■オンライン内見サービス対応でご自宅からでも物件見学出来ます! |
||||
物件周辺環境
Emio新所沢
505m(徒歩7分)
Emio新所沢
西友新所沢店
295m(徒歩4分)
西友新所沢店
ビッグ・エー 新所沢店
544m(徒歩7分)
ビッグ・エー 新所沢店
セブン-イレブン 所沢緑町4丁目店
210m(徒歩3分)
セブン-イレブン 所沢緑町4丁目店
スギドラッグ 新所沢店
550m(徒歩7分)
スギドラッグ 新所沢店
ドラッグストア マツモトキヨシ 所沢緑町店
756m(徒歩10分)
ドラッグストア マツモトキヨシ 所沢緑町店
所沢市立向陽中学校
967m(徒歩13分)
所沢市立向陽中学校
所沢市立北小学校
477m(徒歩6分)
所沢市立北小学校
じょんのび保育園
369m(徒歩5分)
じょんのび保育園
アンドレア保育園
602m(徒歩8分)
アンドレア保育園
新所沢こひつじ幼稚園
804m(徒歩11分)
新所沢こひつじ幼稚園
新所沢郵便局
542m(徒歩7分)
新所沢郵便局
所沢市立所沢図書館 新所沢分館
762m(徒歩10分)
所沢市立所沢図書館 新所沢分館
中砂公園
158m(徒歩2分)
中砂公園
北所沢中央公園
272m(徒歩4分)
北所沢中央公園
所沢美原総合病院
1100m(徒歩14分)
所沢美原総合病院
新所沢駅
474m(徒歩6分)
新所沢駅
営業時間 9:00~19:00/毎週水曜定休

・地積、建物床面積、仕様に変更が生じる場合があります。
・図面と現況が異なる場合には現況を優先します。
・物件情報は最新のものをご提供させて頂きますが、万一売約済の場合はご容赦ください。
・掲載物件の取引態様が「仲介」となっているものは、仲介手数料減額物件を除き、ご成約の際に規定の手数料及びそれに係わる消費税を別途申し受けます。
・建築条件付土地は土地売買契約締結後、一定期間内に当社指定の不動産会社もしくは建築業者と建築請負契約を結ぶことが前提となります。期間中に建築請負契約が成立しなかった場合、土地売買契約は白紙となり、支払った金額は全額返金されます。



















